Algemene informatie

Wonen in Enschede

Wonen in een voormalige kenmerkende textielfabriek in Enschede? Mogelijk vanaf eind 2024! Moderne en karakteristieke 2 verdiepingswoningen voorzien van een duurzaam A+ label.
  • Vanaf 80m2 tot 135m2
  • Geheel gasvrij
  • Energielabel A+
  • Zonnepanelen
  • Ruime woonkamer
  • 2 slaapkamers tot 4 slaapkamers
  • Stadstuin en/of loggia
  • Huren of kopen
Prachtig wonen
80 tot 135

m2 ruimte

2 tot 4

slaapkamers

1 badkamer

per woning

2024

verwachte oplevering

voldoende

parkeermogelijkheden

Bekijk details

WONING INFORMATIE

  • Woonkamer
  • Slaapkamers
  • Keuken
  • Plattegrond beneden
  • Plattegrond boven

Woonkamer

Iedere woning is voorzien van een ruime woonkamer waarbij je alle ruimte hebt dit volledig naar wens in te richten. Door het aanbod van verschillende groottes in vierkante meter vind je altijd een woning bij ons die bij jou past. Schrijf je in en verzeker jezelf van een mogelijkheid om te wonen.

Slaapkamers

Iedere woning heeft minimaal twee slaapkamers en maximaal 4 slaapkamers. De woningen worden volledig afgewerkt zodat je meteen je nieuwe woning kan betrekken en je het alleen nog maar naar smaak hoeft in te richten.

Keuken

Iedere woning wordt ingericht met een nieuwe keuken zodat je hier geen omkijken meer naar hebt. Daarnaast kook je gasvrij in deze duurzame woning. Schrijf je in en verzeker jezelf van een mogelijkheid om te wonen.

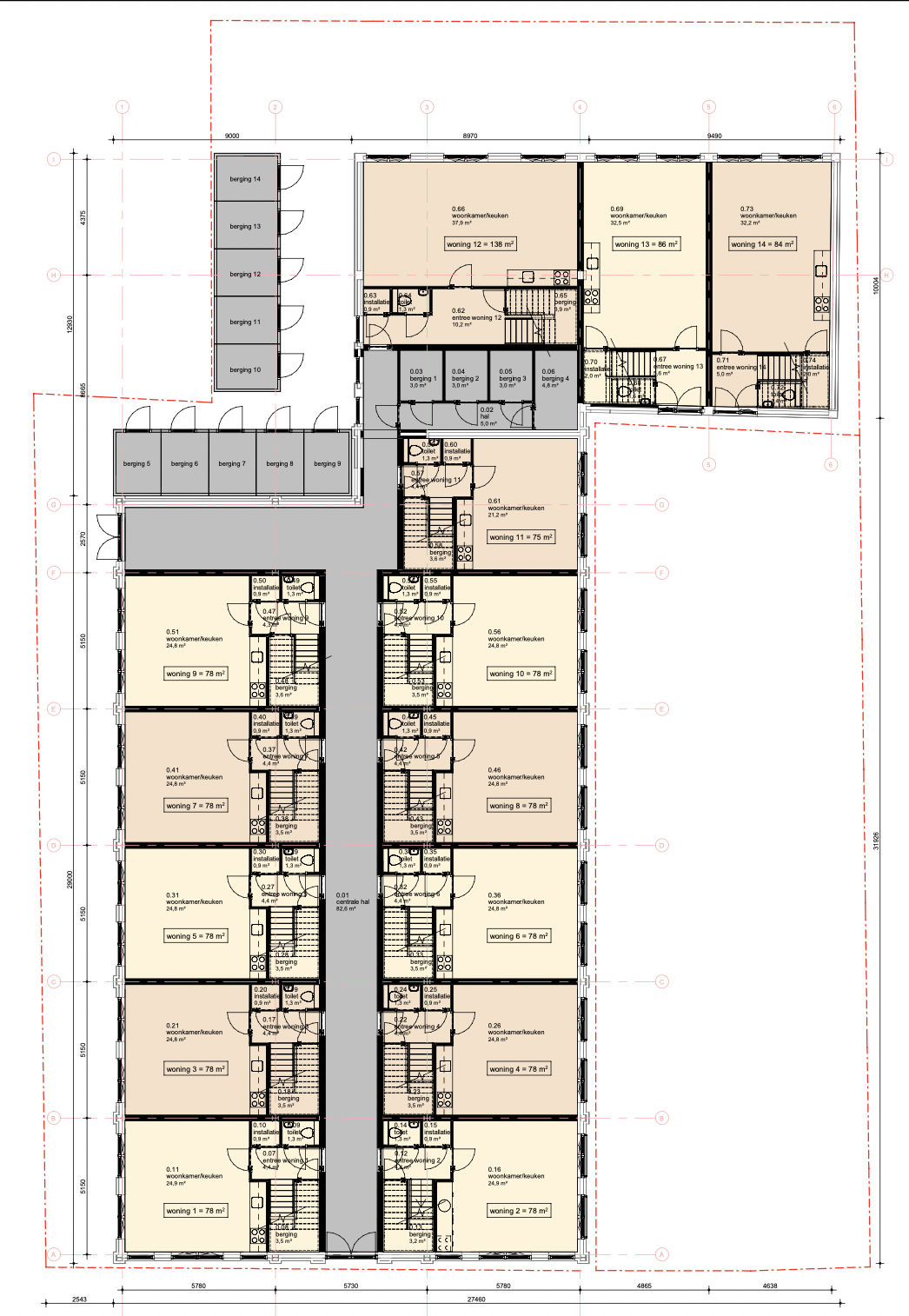
Plattegrond beneden

Bekijk hiernaast de plattegrond van de woning beneden.

Plattegrond boven

Bekijk hiernaast de plattegrond van de woning boven.
Duurzaam wonen.

Waarom dit je nieuwe huis moet worden

  • Vanaf 80m2 tot 135m2
  • Geheel gasvrij en A+ Label
  • Zonnepanelen
  • Ruime woonkamer en slaapkamers
  • Stadstuin en/of loggia
  • Mogelijkheid om te huren of kopen
Wonen in Enschede

Schrijf je in

    Ik heb interesse in: